
零件名称 | 材料 |
阀体、阀盖 | ZG270-500、ZG1Cr18Ni9Ti |
阀杆、阀芯 | 1Cr18Ni9 |
密封填料 | V型聚四氟乙烯 |
密封垫 | 1Cr18Ni9夹石棉板 |
蜗杆 | 45 |
O型密封圈 | 耐油橡胶 |
压缩弹簧 | 60Si2Mn |
支架 | HT270 |
蜗轮箱、蜗轮、气缸、轴承盖、活塞 | HT200 |
推杆 | 2Cr13 |
类别 | 软密封 | 硬密封 | ||
常温型 | 中温型 | 高温型 | 低温型 | |
型号 | ZSPQ-40 | ZSPQ-40G | ZSPQ-40G | ZSPQ-40D |
规格 | DN20~200 | |||
公称通径mm | 20 | 25 | 32 | 40 | 50 | 65 | 80 | 100 | 125 | 150 | 200 | 250 | 300 | 350 | 400 |
阀座直径mm | 26 | 43 | 43 | 52 | 62 | 79 | 94 | 115 | 145 | 166 | 216 | 可与本公司 商洽生产 | |||
额定流量系数Kv | 6.5 | 10 | 15 | 25 | 40 | 65 | 100 | 150 | 260 | 350 | 540 | ||||
公称压力MPa | 4.0(JB/T79·2-94) | ||||||||||||||
行程mm | 16 | 25 | 40 | 60 | |||||||||||
介质温度℃ | -16~150(常温);-60~450(中温);-60~550(高温);-250~60(低温); | ||||||||||||||
流量特性 | 两位快开式 | ||||||||||||||
配执行机构 | ZSD-D | ZSD-3 | ZSD-5 | ZSD-7 | |||||||||||
法兰尺寸、型式 | 按JB/T79·2-94凹式(常、中、高温);按JB/T79·3-94榫槽式(低温) | ||||||||||||||
阀体材质 | ZG270-500;ZG1Cr18Ni9Ti;ZG0Cr18Ni12Mo2Ti | ||||||||||||||
型号 | ZSD-D | ZSD-3 | ZSD-5 | ZSD-7 |
活塞直径 mm | 150 | 200 | 300 | 400 |
有效面积 cm2 | 175 | 305 | 700 | 1245 |
行程 mm | 16 | 25 | 40 | 60 |
进气孔螺纹 | M16×1.5 | M20×1.5 | M24×2 | |
最大输出力 N | 7200 | 12800 | 29300 | 5200 |
可配附件 | 空气过滤减压器、保位阀、行程开关、阀位传送器、电磁阀、手轮机构等 | |||
操作气源压力 KPa | 500 | |||
公称通径 mm | 20 | 25 | 32 | 40 | 50 | 65 | 80 | 100 | 125 | 150 | 200 | |
泄漏量 滴/min | 软密封 | 0 | ||||||||||
硬密封 | 1 | 3 | 5 | 7 | 9 | |||||||
切断时间 S | 1~2 | 2~4 | ||||||||||
额定行程偏差% | +10 | |||||||||||
公称通径 mm | 20 | 25 | 32 | 40 | 50 | 65 | 80 | 100 | 125 | 150 | 200 | |
允许压差 | 气开 | 4.0 | 4.0 | 4.0 | 2.8 | 3.5 | 2.4 | |||||
气关 | 4.0 | 2.5 | 1.7 | 1.0 | 1.1 | 0.8 | 0.6 | |||||

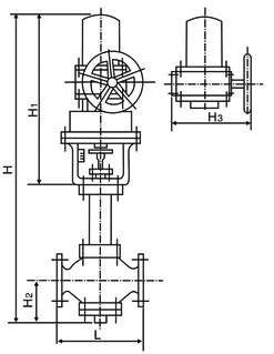
公称 通径 | L | H2 | 带手轮 | 不带手轮 | |||||
H | H1 | H3 | 重量kg | H | H1 | 重量kg | |||
20 | 180 | 53 | 662 | 447 | 222 | 39 | 574 | 359 | 26 |
25 | 190 | 111 | 732 | 46 | 644 | 33 | |||
32 | 210 | 117 | 744 | 48 | 656 | 35 | |||
40 | 230 | 131 | 885 | 570 | 280 | 85 | 778 | 463 | 61 |
50 | 255 | 146 | 915 | 89 | 808 | 65 | |||
65 | 285 | 181 | 1131 | 706 | 389 | 135 | 969 | 542 | 97 |
80 | 310 | 190 | 1147 | 143 | 983 | 99 | |||
100 | 355 | 194 | 1155 | 163 | 991 | 109 | |||
125 | 425 | 256 | 1588 | 1022 | 305 | 1305 | 739 | 218 | |
150 | 460 | 266 | 1608 | 331 | 1325 | 244 | |||
200 | 560 | 289 | 1659 | 445 | 1376 | 358 | |||
公称 通径 | L | H2 | 带手轮 | 不带手轮 | |||||
H | H1 | H3 | 重量kg | H | H1 | 重量kg | |||
20 | 180 | 53 | 813 | 447 | 222 | 43 | 725 | 359 | 30 |
25 | 190 | 111 | 883 | 52 | 795 | 39 | |||
32 | 210 | 117 | 895 | 54 | 807 | 41 | |||
40 | 230 | 131 | 1036 | 570 | 280 | 90 | 929 | 463 | 66 |
50 | 255 | 146 | 1066 | 95 | 969 | 71 | |||
65 | 285 | 181 | 1296 | 706 | 389 | 145 | 1132 | 542 | 101 |
80 | 310 | 190 | 1310 | 155 | 1146 | 111 | |||
100 | 355 | 194 | 1318 | 172 | 1154 | 128 | |||
125 | 425 | 256 | 1803 | 1022 | 327 | 1520 | 739 | 240 | |
150 | 460 | 266 | 1823 | 356 | 1540 | 269 | |||
200 | 560 | 289 | 1874 | 464 | 1591 | 377 | |||
公称通径 | L | H2 | H3 | -100℃ | -200℃ | -250℃ | |||||||||
带手轮 | 不带手轮 | 带手轮 | 不带手轮 | 带手轮 | 不带手轮 | ||||||||||
H1 | H | H1 | H | H1 | H | H1 | H | H1 | H | H1 | H | ||||
20 | 180 | 53 | 222 | 500 | 1127 | 500 | 1039 | 700 | 1237 | 700 | 1239 | 900 | 1527 | 900 | 1439 |
25 | 190 | 111 | 500 | 1181 | 500 | 1093 | 700 | 1381 | 700 | 1293 | 900 | 1581 | 900 | 1491 | |
32 | 210 | 117 | 500 | 1193 | 500 | 1105 | 700 | 1393 | 700 | 1305 | 900 | 1593 | 900 | 1505 | |
40 | 230 | 131 | 280 | 500 | 1310 | 500 | 1203 | 700 | 1510 | 700 | 1403 | 900 | 1710 | 900 | 1603 |
50 | 255 | 146 | 500 | 1335 | 500 | 1228 | 700 | 1535 | 700 | 1428 | 900 | 1735 | 900 | 1628 | |
65 | 285 | 181 | 600 | 1554 | 600 | 1447 | 800 | 1754 | 800 | 1647 | 1000 | 1954 | 1000 | 1847 | |
80 | 310 | 190 | 600 | 1565 | 600 | 1458 | 800 | 1765 | 800 | 1658 | 1000 | 1965 | 1000 | 1858 | |
100 | 355 | 194 | 600 | 1569 | 600 | 1462 | 800 | 1769 | 800 | 1662 | 1000 | 1769 | 1000 | 1862 | |
125 | 425 | 256 | 378 | 700 | 1942 | 700 | 1809 | 900 | 2142 | 900 | 2009 | 1100 | 2342 | 1100 | 2209 |
150 | 460 | 266 | 700 | 1952 | 700 | 1819 | 900 | 2152 | 900 | 2019 | 1100 | 2352 | 1100 | 2219 | |
200 | 560 | 289 | 700 | 1982 | 700 | 1849 | 900 | 2182 | 900 | 2049 | 1100 | 2382 | 1100 | 2249 | |
| 阀体材质公称压力为4.0MPa介质工作温度℃200250300350<400<425<450<475<500<510<525<550最大工作压力MPaZG270-500ZG1Cr18Ni9Ti4.03.73.33.02.82.31.8 4.03.63.43.22.82.22.01.71.4 |
![]()