
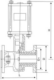
名称 | 材料 |
阀体 | 铝合金、铸铁 |
套管 | 橡胶 |
阀杆 | 铸铜、碳钢 |
压杆 | 球墨铸铁 |
电动头 | 组合件 |
托架 | 球墨铸铁 |

公称通径 (DN) | 公称压力 (MPa) | 工作压力 (MPa) | L | L1 | D | D1 | Z-Φ | H | A | 重量 (kg) |
25 | 0.6 | 0.6 | 160 | 124 | 115 | 85 | 4-14 | |||
32 | 165 | 145 | 140 | 100 | 4-18 | |||||
40 | 190 | 157 | 150 | 110 | 4-18 | |||||
50 | 210 | 160 | 160 | 125 | 4-18 | |||||
65 | 250 | 199 | 180 | 145 | 4-18 | |||||
80 | 300 | 222 | 195 | 160 | 4-18 | |||||
100 | 350 | 250 | 215 | 180 | 8-18 | |||||
125 | 430 | 318 | 245 | 210 | 8-18 | |||||
150 | 500 | 350 | 280 | 240 | 8-23 | 1000 | 265 | |||
200 | 0.4 | 0.4 | 650 | 446 | 335 | 295 | 8-23 | 1174 | 330 | |
250 | 800 | 516 | 395 | 350 | 12-23 | |||||
300 | 950 | 562 | 445 | 400 | 12-23 | |||||
采用标准设计与制造:Q/JBGN02 结构长度:Q/JBGN02 法兰连接尺寸:JB78(PN1.0MPa) | ||||||||||
![]()