
公称压力 | 壳体试验 | 适用介质 | 适宜温度 |
1.6 | 2.4 | 液化气、天然气等 | -40~+80℃ |
2.5 | 3.75 | ||
4.0 | 6.0 |

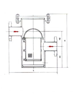
DN-JIS | L | H | H1 | H2 | |
mm | in | ||||
50 | 2 | 420 | 380 | 180 | 100 |
65 | 21/2 | 450 | 400 | 180 | 100 |
80 | 3 | 473 | 480 | 200 | 100 |
100 | 4 | 573 | 610 | 250 | 180 |
125 | 5 | 573 | 610 | 250 | 180 |
150 | 6 | 580 | 720 | 280 | 230 |
200 | 8 | 650 | 800 | 350 | 360 |
250 | 10 | 800 | 950 | 380 | 400 |
![]()